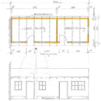
Gartenhaus
Baden bei Wien
Baujahr: 2016
Bauherr: Familie Urbanek
Planung: Johannes Erlinger
Ausführung: Erlinger Holzbau GmbH
Wohnnutzfläche: 27 m2
Für dieses Gartenhaus wurde eine Holzriegelwand errichtet mit eigens dimensionierten Fensterstöcken nach Maßgabe der vom Bauherrn gebraucht gekauften Fensterflügel. Da sich diese als unbrauchbar herausstellten, wurden auch die Fensterflügel neu gemacht. Innen wurden Fräsungen in den Holzriegeln angebracht, wodurch ein flexibles Regalbrett-Stecksystem entstand. Die für außen verwendete norwegische Holzfassadenfarbe verspricht ein Wartungsintervall von zehn Jahren.








