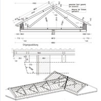
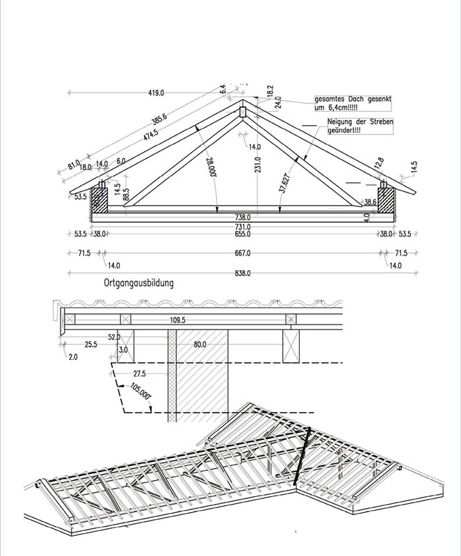
Dachstuhl Einfamilienhaus
Möllersdorf bei Traiskirchen
Baujahr: 2016
Bauherr: Familie Alphart
Planung: Baumeister Erwin Füll, Traiskirchen
Ausführung Holzbau: Erlinger Holzbau GmbH
Ausführung Bauarbeiten: Marinbau/Traiskirchen
Dachfläche: 330 m2 / Wohnnutzfläche: 205 m2
Sicherlich die Kernkompetenz des Zimmermanns: der Dachstuhl. Die besondere Herausforderung bei diesem Projekt: Obwohl eine Stahlbetondecke vorhanden ist, mussten die Dachlasten seitlich bei den Außenwänden abgetragen werden, und das bei einer Dachfläche von über 300 Quadratmetern








